An exciting opportunity is offered with this substantial two-storey building positioned on a generous 4,300m² (approx.) parcel of dual-zoned land (R1 General Residential & RE2 Private Recreation) in one of Tamworth’s most prominent and highly visible locations.
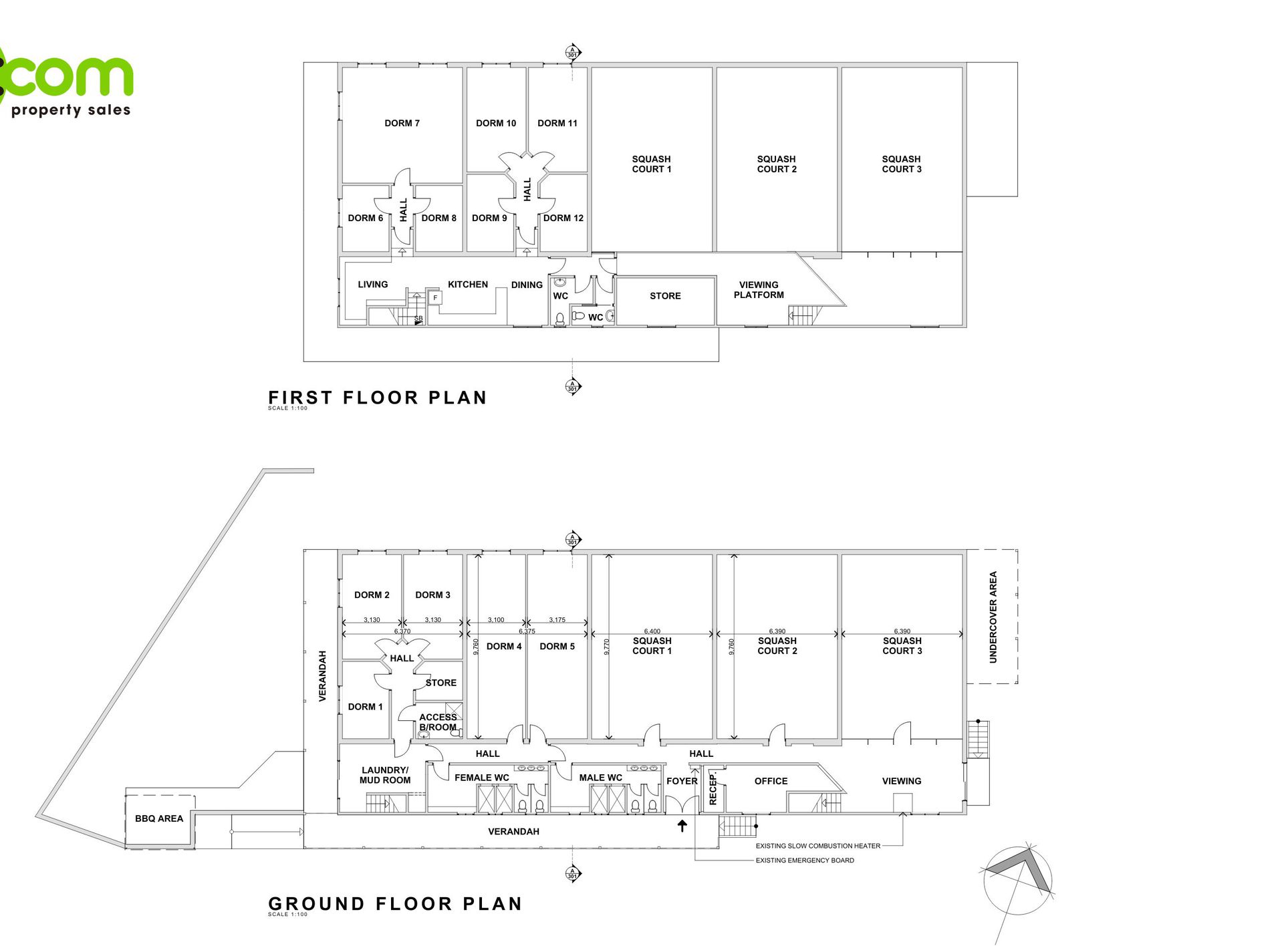
Known as The Bunkhouse, the property was originally constructed as five squash courts, with two courts converted into shared budget accommodation. The building has historically operated as bunkhouse-style accommodation for up to approximately 60 occupants. To continue use as accommodation, refurbishment and upgrading would be required to meet current standards, presenting an opportunity for buyers to enhance and revitalise the property for this purpose.
Alternatively, the property offers flexibility for a range of other uses (STCA), including:
- Medical
- Gym or fitness centre
- Place of worship
- Office or consulting rooms
- Community or recreational use
- Childcare centre
- Crisis accommodation facility
The substantial two-storey structure provides expansive internal areas, while the generally level and accessible site offers extensive on-site parking and excellent exposure to the busy Goonoo Goonoo Road, ensuring strong accessibility and visibility.
The property is further enhanced by a scenic mountain backdrop, creating an attractive setting for both commercial and community-focused uses.
Key Features:
- Approx. 4,300m² landholding
- Dual zoning: R1 General Residential & RE2 Private Recreation
- Substantial two-storey building
- Bunkhouse-style accommodation (refurbishment required to continue use)
- Multiple alternative use options (STCA)
- Extensive on-site parking
- Prominent Goonoo Goonoo Road frontage
- Scenic mountain outlook
This is a rare opportunity to secure a large, adaptable property with strong refurbishment or repurposing potential (STCA) in a high-profile Tamworth location.
Disclaimer:
All information contained herein is provided for general information purposes only and does not constitute an offer or representation. While care has been taken, no warranty is given by the owner or agent as to the accuracy or completeness of the information. Interested parties must rely on their own enquiries and professional advice in relation to the property, approvals and suitability for any intended use.



































