Single level, weatherboard, Council approved Group home
Large rooms, high ceilings, polished timber floorboards
Convenient location, close to public transport & local shopping
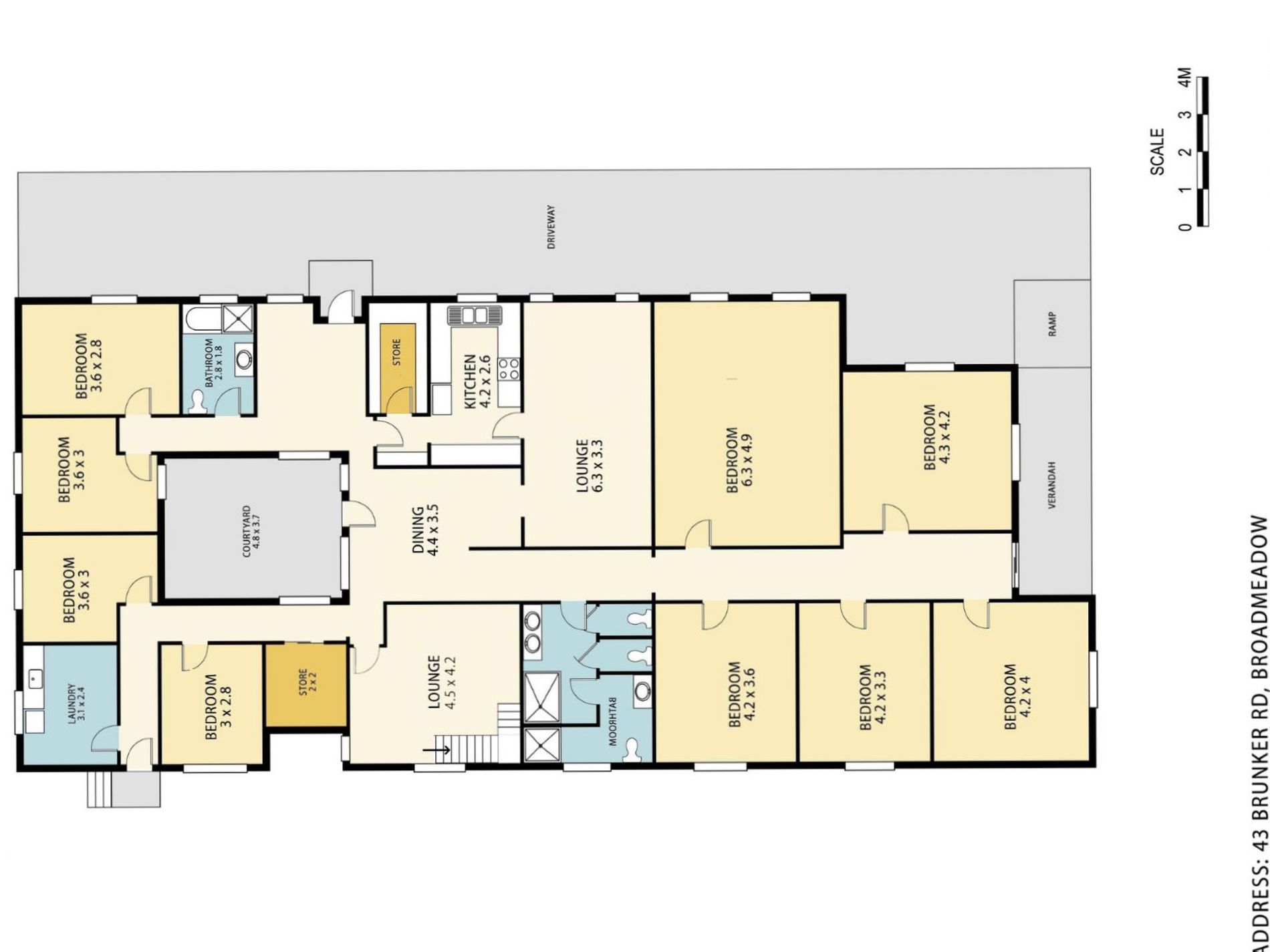
9 bedrooms, separate lounge/dining rooms, 3 bathrooms
Manager’s residence with onsite parking
R4 Zoning offers potential for high density residential development
Land Content: Approx 614m2 - 18 metre frontage
Zoning: R4 High Density Residential
Current Income: $79,404 pa plus outgoings
Lease Expiry: 31 August, 2026
Lease Option: 31 August, 2028
Current Use: Council approved Group Home
DA Consent: DA1987/0085 - 5 January, 1988
Land Description: Lot 1 DP 523411
The above information has been gathered from sources that we consider reliable, however we cannot guarantee it's accuracy and act as a messenger only in passing on the details. Interested persons should rely on their own enquiries.
John Trzecinski
mob: 0418 685 955
[email protected]
Kale Hook
mob: 0431 122 009
[email protected]





























