Set in a great location away from the hustle & bustle with an easy walk to shops and one of only two in the complex with low fees, this light and airy two-bedroom brick and tile, single level villa would be an ideal first home, a downsize opportunity or a great investment with the current rental shortage.
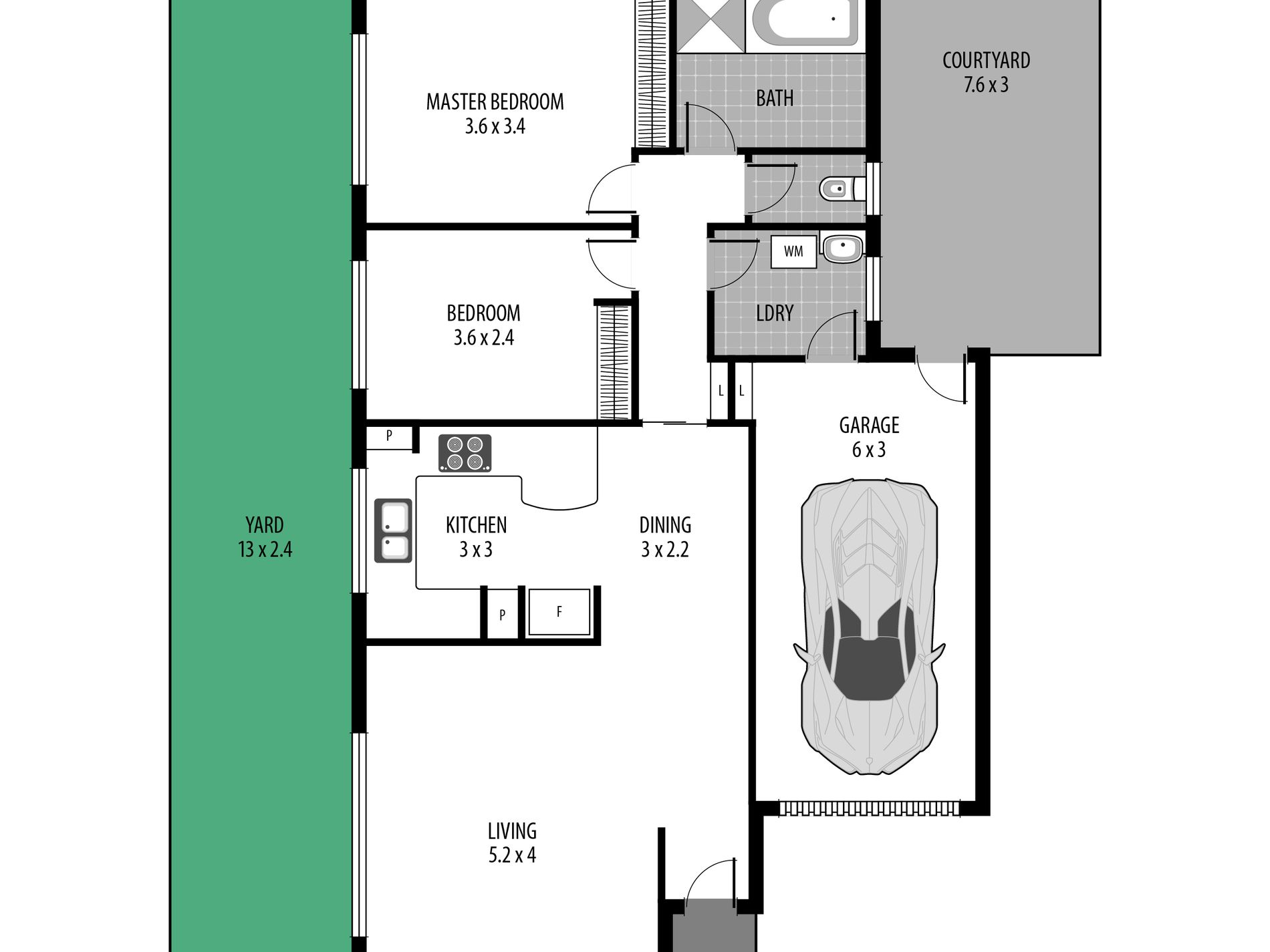
The main living spaces are at the front of the home, with a generous open plan lounge and separate dining area connected to a modern kitchen. The kitchen has plenty of storage & bench spaces and a pantry.
The two bedrooms are at the rear with two of the bedrooms having built-in robes. The bathroom includes a bathtub, shower space and a separate toilet. There is a single garage with an automatic door.
Under 2km drive metres to Green Point Shopping Village & the new Sun Valley Playground and only a short approx. 5 minute walk to Aldi Supermarket, close-by Waterfront, Boat ramp, a approx. 8 to 10 minute a drive to Erina Fair Shopping Centre plus only a 15 minute drive to Terrigal beach and alfresco dining.
Guide $660,00 to $690,000.
Features
- Air Conditioning
- Split-System Air Conditioning
- Remote Garage
- Courtyard
- Fully Fenced
- Secure Parking
- Built-in Wardrobes
- Dishwasher























