Bella Vista
Offering commanding district views from an elevated position you will be able to enjoy this peace and quiet of this bushy small cul de sac of just seven homes.
# Slow combustion fireplace, Air flow system
# Renovated bathroom, Air conditioning
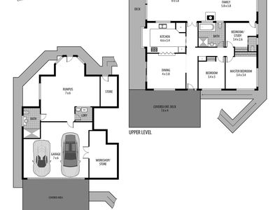
# Double garage plus workshops - yes workshops with an S
# Extremely versatile floor plan with multiple livings areas
# Wrap around balcony, Covered outdoor entertaining
Downstairs offers teenage retreat, home office, potentially converted into a granny flat for second income. This is a solid opportunity to secure a commanding position with future potential.
To view this property in person contact Mark direct on 0416144286
# We are a COVID safe company and offer the NSW Government QR code system, yet we still record all attendees





























