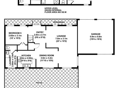
This ten year old (approx) home is on an elevated block of land with long range views. The property has a large backyard and massive outdoor entertaining area that could be closed in to create more internal living space. There is loads of storage space and there is a large double garage with one remote door and drive through for boats and trailers etc on the other side to a large concrete pad.
Four of the five bedrooms have ceiling fans and all have built-in-robes (main has walk-in-robe and a large ensuite).
The property also features:
Ducted air-conditioning (multi zone)
Ducted vacuum
Gas stove
Dishwasher
Timber floating floors throughout lounge and dining
Third toilet
Large internal laundry
Inspect now! Call or text NEIL HARPER or RYAN NICHOLS on 0404 836 334





















