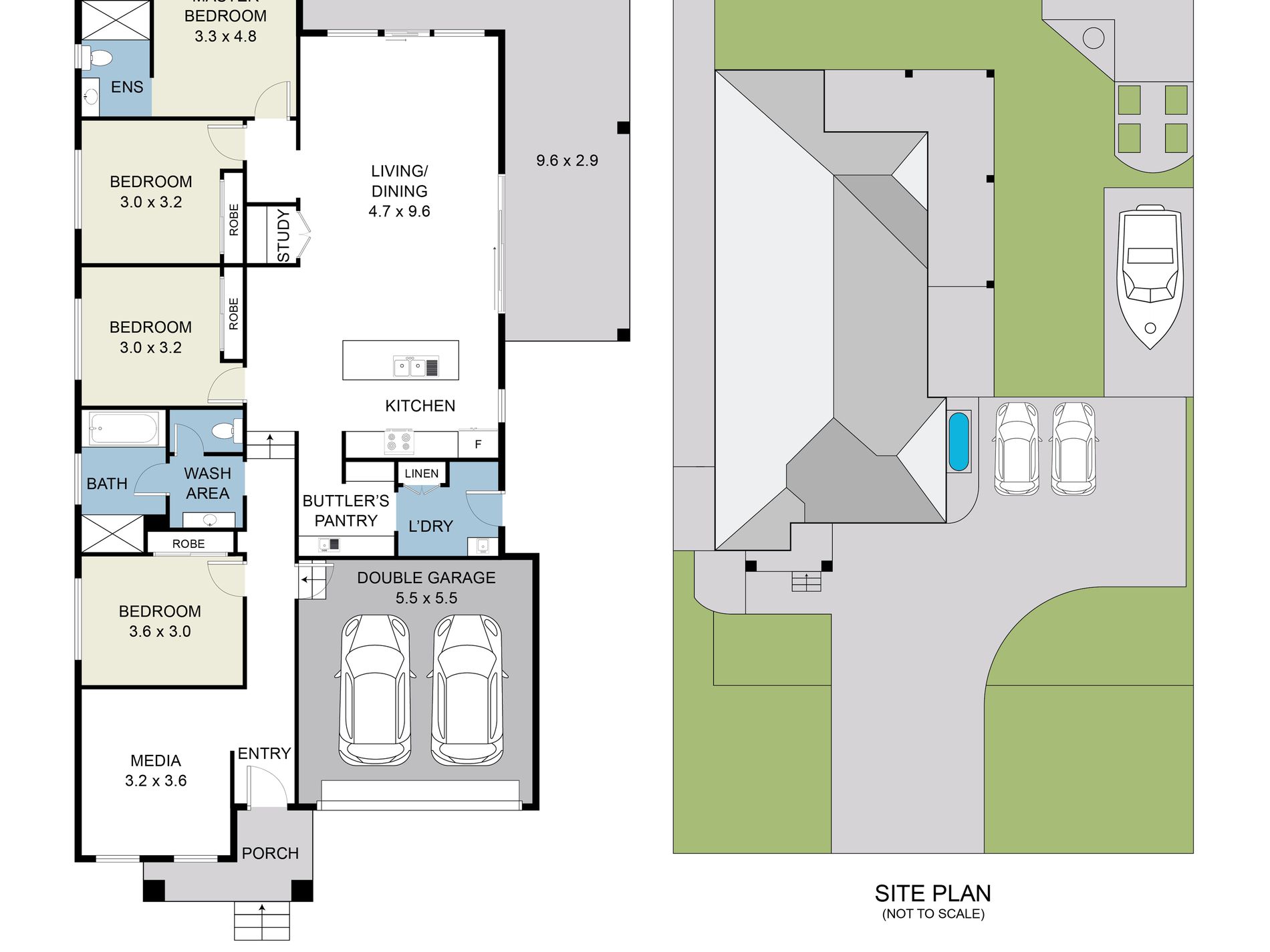
This Immaculately presented, four-bedroom home, with two living areas, positioned on a 960 sqM block, with side yard access for the Motor Home, Boat or Caravan, or Granny Flat, and located in a quiet st, this beautiful home is complete and has lots of extra's with a bushland view at the rear.
The home includes:
Large open plan Living and dining/ family room, with indoor/outdoor flow to large alfresco grande, with electric blinds.
Magnificent kitchen, Stone bench tops, and all new appliances, range hood, large gas cooktop .
Buttler's pantry, and shelving.
Home theatre/media room
Large double garage with remote control and internal access, and car hoist if required.
Side yard access for the van or boat or motor home with electric gate, and additional parking spaces.
Four good size bedrooms all with built in's
Main bedroom at rear, with ensuite and robe
Furnished with modern blinds and shutters throughout
Excellent lawns, gardens and fully fenced back yard
Modern bathroom
Excellent Laundry with lots of storage space
Spilt system Air conditioning
Solar panels approx. 10 kw system
Lots of other great features including, high ceilings
Find a shopping Centre and tavern close by, wineries and top-notch restaurants only minutes away, and quality schools nearby AS WELL.
If you love a quiet street and luxurious modern living, then don't let this unique opportunity go by without inspection.
DISCLAIMER
The information provided on this website is for general purposes only and should not be taken as professional advice.
All property details, pricing, and statements are illustrative and subject to change. Actual outcomes may vary due to market conditions, council approvals, planning requirements, policy changes, or other external factors. Dotcom Property Sales makes no warranty or representation that any property information, projection, or estimate displayed will be achieved or remain accurate. Interested parties should rely on their own enquiries.





























